问题不能为空!快去添加问题吧!

齐家网 > 装修设计 > 新乡装修 > 新乡装修案例 > 梦幻的家

梦幻的家

149㎡ 三房 北欧 望京花园
造价:
30万

在这大千世界里,总有那么一群人,她们如同少女一般梦想着童话里公主般的生活

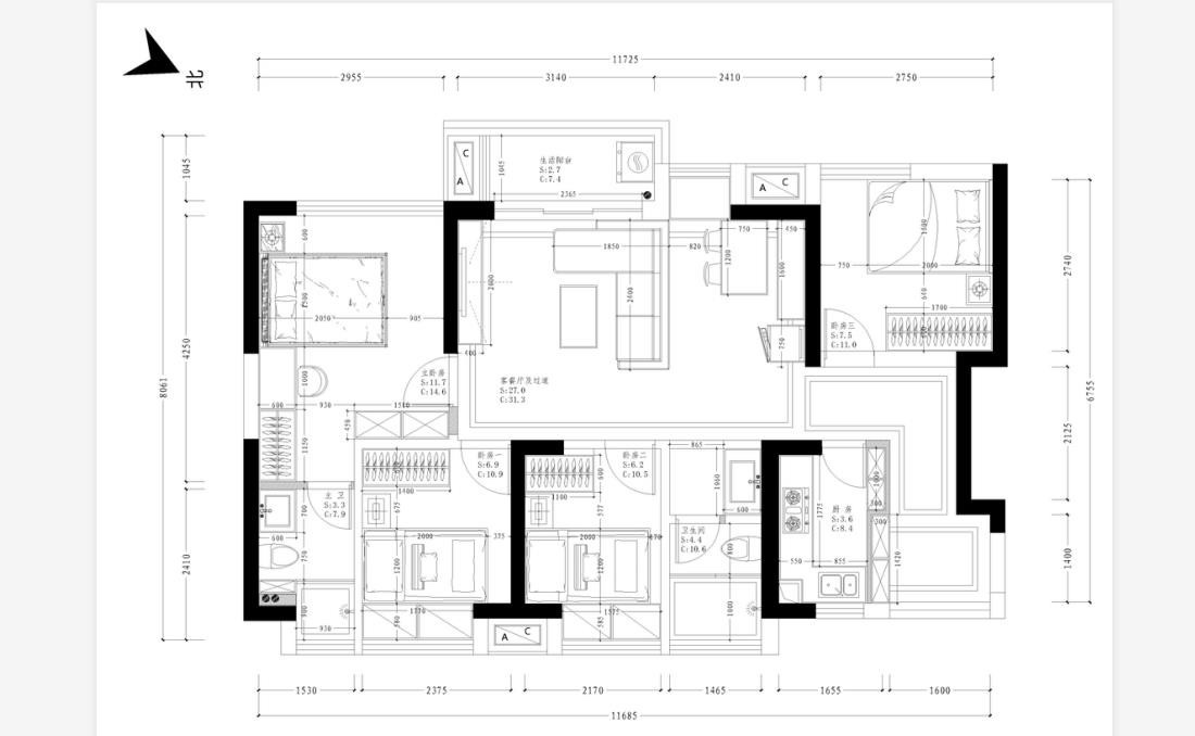
  • 全屋户型图

    在这大千世界里,总有那么一群人,她们如同少女一般梦想着童话里公主般的生活

  • 客厅

    在这个符合功能的空间里,我们以原木色的地板、餐桌,竹木编织的藤编灯罩

    将原结构中的电视墙转了90度,并把走廊融进客厅区域里

    在这个符合功能的空间里,我们以原木色的地板、餐桌,竹木编织的藤编灯罩

  • 卧室

    采用了橡皮粉+白+原木的色调。

  • 卫生间

    大胆地将追求自由的心表露无遗:墙面用大理石纹墙砖搭配一面粉色的条纹墙砖。

  • 餐厅

    小餐桌搭配,充满乡村感

< >

现代简约100平

38平 明亮 舒适 轻奢

现代简约110平

37平米 一居室 复古风

春意盎然

商家信息
美晟家装饰

口碑值:

已有人预约

立即询价

设计师信息

张东亮总监设计师

工作年限:10年

从业10年,走过设计的岁月,人生的历练与沉淀,化作对于人生, 对于生活的理解。美晟家设计总监,高级设计师,醉心于设计解决方案,一心一意为业主。

请他帮我设计

沪ICP备13002314号-1 沪B2-20170342 组织机构代码证:66439109—1

中国互联网协会信用评价中心网信认证 网信编码:1664391091 举报电话:400-660-7700

齐家网 版权所有Copyright © 2005- www.jia.com All rights reserved

回到顶部

扫一扫,关注我们

齐家官方微信

温馨提示

取消 同意并继续