扫码下载 齐家APP
海量装修干货解救装修小白
扫码下载APP
扫码查看小程序
扫码关注公众号
问题不能为空!快去添加问题吧!
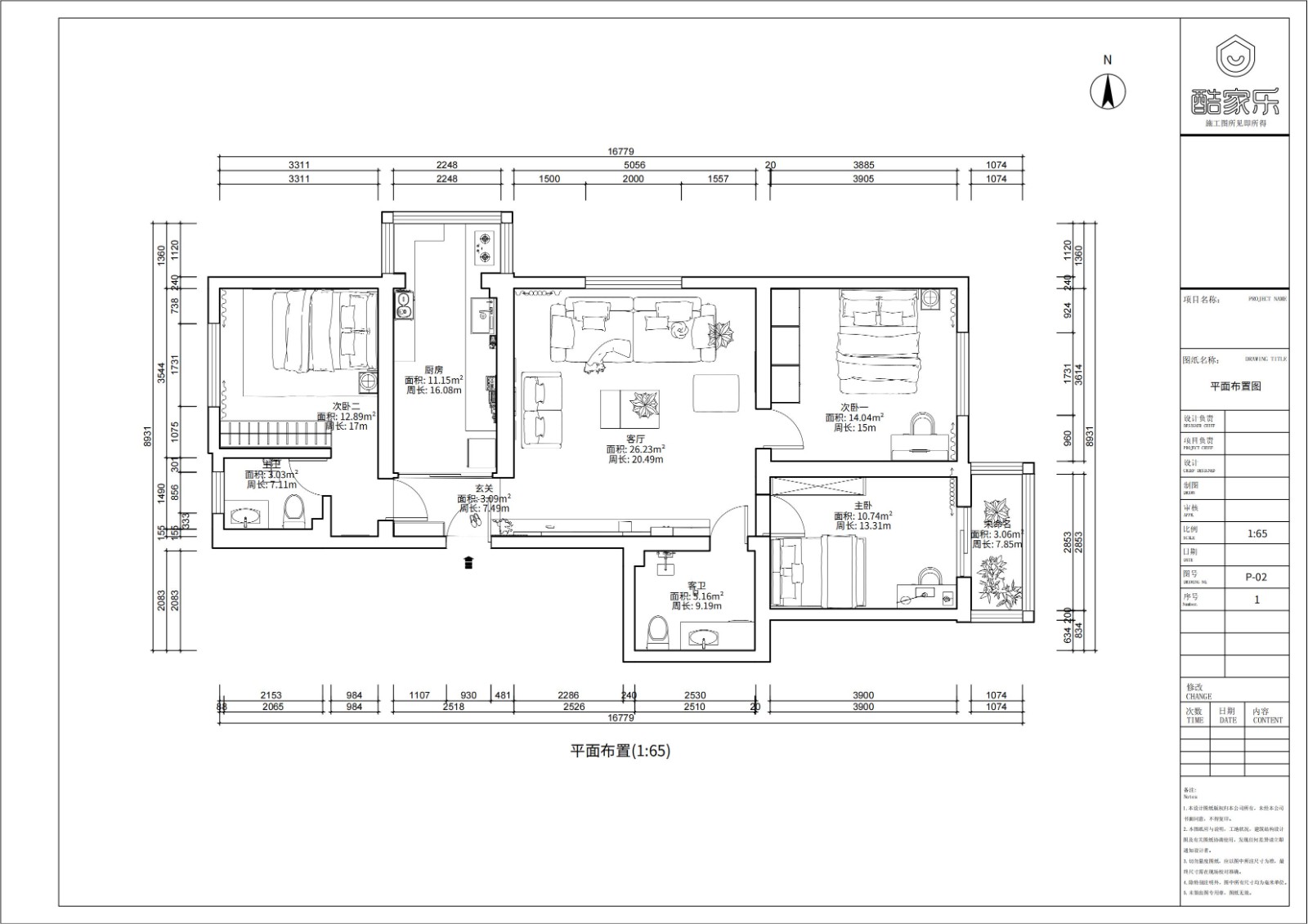
设计期间,问会把所有想到的美好,颜值,实用,氛围感皆赋予空间。
电视背景墙简约大气,欧柏让光阴赋予他无限想象。
主卧常规布局,又加入小细节,通顶衣柜收纳空间足。
厨房比较长,浅色橱柜干净整洁。
卫生间设计比较单间,合理利用空间安装洗衣机。
中古风
包豪斯
原木风
法式中古
奶油
热门搜索
口碑值:
已有人预约
口碑值计算方式:
开工(+4分)
预约(+1分)
投诉(-30分)
口碑分值有效期为90天
立即询价
沪ICP备13002314号-1 沪B2-20170342 组织机构代码证:66439109—1
中国互联网协会信用评价中心网信认证 网信编码:1664391091 举报电话:400-660-7700
齐家网 版权所有Copyright © 2005- www.jia.com All rights reserved
今日已有0用户预约装修
24小时内会有客服人员与您联系,确认您的具体需求
由于申请人数较多,完善资料可更快获取审核服务
扫一扫,关注齐家官方微信号
“您还可以在微信上找到更多装修服务”
扫一扫,关注我们
齐家官方微信
请阅读并同意《齐家用户协议》和《隐私政策》
取消 同意并继续