问题不能为空!快去添加问题吧!

齐家网 > 装修设计 > 阳江装修 > 阳江装修案例 > 未来花园实景案例展示

未来花园实景案例展示

130㎡ 大平层 奶油 未来花园
造价:
13.8万

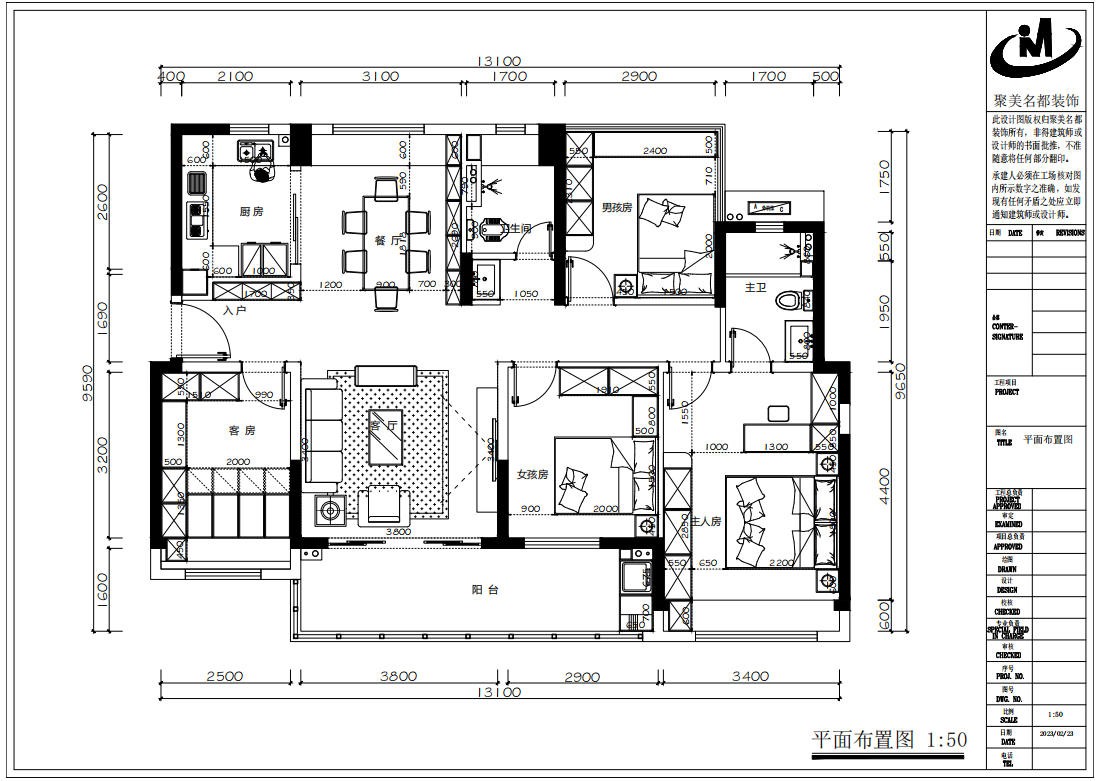
采光通风佳:南北双阳台形成穿堂风;南向大面宽,客厅+双卧朝南,全明厨卫无暗角 空间开阔:LDKG一体化放大公共区;约7米南向阳台可做休闲/观景,北阳台承担家政收纳;玄关+嵌入式柜体提升收纳 居住舒适:动静分区清晰,休息区远离动区;主卧套房私密性强;双卫适配高峰使用,公卫可做干湿分离 可塑性强:灵动空间可改书房/儿童房/健身区;带装修交付,可封阳台、改开放式书房,适配不同家庭阶段

  • 全屋户型图

    采光通风佳:南北双阳台形成穿堂风;南向大面宽,客厅+双卧朝南,全明厨卫无暗角 空间开阔:LDKG一体化放大公共区;约7米南向阳台可做休闲/观景,北阳台承担家政收纳;玄关+嵌入式柜体提升收纳 居住舒适:动静分区清晰,休息区远离动区;主卧套房私密性强;双卫适配高峰使用,公卫可做干湿分离 可塑性强:灵动空间可改书房/儿童房/健身区;带装修交付,可封阳台、改开放式书房,适配不同家庭阶段

  • 客厅

  • 卧室

  • 厨房

< >

壹城中心大宅设计

壹城中心意式大宅

奥园尚雅大宅设计

金悦华府实景案例展示

隆生鹿江花园实景案例展示

沪ICP备13002314号-1 沪B2-20170342 组织机构代码证:66439109—1

中国互联网协会信用评价中心网信认证 网信编码:1664391091 举报电话:400-660-7700

齐家网 版权所有Copyright © 2005- www.jia.com All rights reserved

回到顶部

扫一扫,关注我们

齐家官方微信

温馨提示

取消 同意并继续