问题不能为空!快去添加问题吧!

齐家网 > 装修设计 > 北京装修 > 北京装修案例 > 素净

素净

142㎡ 三房 北欧 孔雀城
造价:
286万

本案户型大,,喜欢简约的黑白灰设计,融入水泥元素,让空间沉稳大气。拆除多余墙体,留出宽敞的走道空间。妙用空间术,打造出两间多功能房,同时满足住宿、收纳、办公、娱乐等需求。在细节处,全屋大面留白,仅用少量质感家具、简约的线条装饰。赋予人充足的想象、活动空间。定制多面高柜,将收纳隐于无形,打造了一个时尚、舒适、有格调的灰度王国。

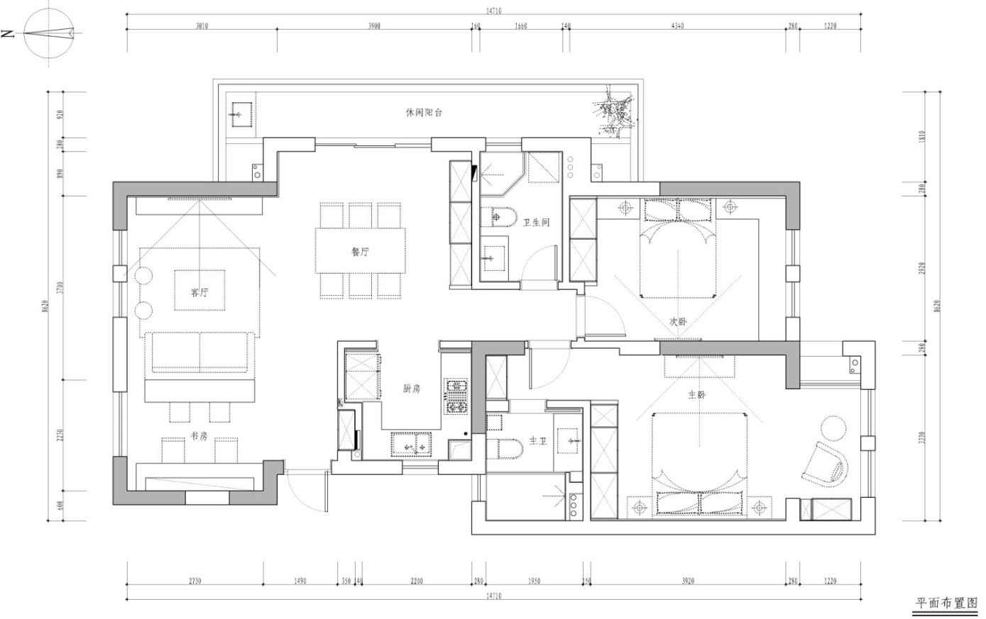
  • 全屋户型图

    本案户型大,,喜欢简约的黑白灰设计,融入水泥元素,让空间沉稳大气。拆除多余墙体,留出宽敞的走道空间。妙用空间术,打造出两间多功能房,同时满足住宿、收纳、办公、娱乐等需求。在细节处,全屋大面留白,仅用少量质感家具、简约的线条装饰。赋予人充足的想象、活动空间。定制多面高柜,将收纳隐于无形,打造了一个时尚、舒适、有格调的灰度王国。

  • 客厅

    灰色墙顶面形成强烈视觉对比,空间层次更加分明,独特的纹理,也冲淡了纯色的单调冷淡,赋予空间更多变化,升华整体质感。

    方便日常出门整理着装。安装挂钩,充分利用墙面空间,悬挂衣服、帽子,令入户区域整洁有序。

    操作台面迁移到进门的右侧,面积是原来的2倍,配备双水槽,洗切煮更加方便。窗户使用蜂巢帘,隔热保暖,还能降低噪音,使厨房使用体验感更佳,独特的结构设计,也令照入室内的光线更柔和。

  • 卧室

    房间两侧均定制整面高柜,满足屋主的衣物、被褥收纳,通风口也与柜体融合,完美地隐藏起来。

    房间两侧均定制整面高柜,满足屋主的衣物、被褥收纳,通风口也与柜体融合,完美地隐藏起来。

    房间两侧均定制整面高柜,满足屋主的衣物、被褥收纳,通风口也与柜体融合,完美地隐藏起来。

    房间两侧均定制整面高柜,满足屋主的衣物、被褥收纳,通风口也与柜体融合,完美地隐藏起来。

    房间两侧均定制整面高柜,满足屋主的衣物、被褥收纳,通风口也与柜体融合,完美地隐藏起来。

  • 厨房

    独立厨房,采用白色柜子,

  • 卫生间

    白色墙砖配白色浴室柜,钻石玻璃淋浴房。

< >

简约办工

柔和的色调,温暖的材质

95秋意盎然

65现代风格

温柔奶油风小家

沪ICP备13002314号-1 沪B2-20170342 组织机构代码证:66439109—1

中国互联网协会信用评价中心网信认证 网信编码:1664391091 举报电话:400-660-7700

齐家网 版权所有Copyright © 2005- www.jia.com All rights reserved

回到顶部

扫一扫,关注我们

齐家官方微信

温馨提示

取消 同意并继续