问题不能为空!快去添加问题吧!

齐家网 > 装修设计 > 蚌埠装修 > 蚌埠装修案例 > 126㎡轻奢美式风

126㎡轻奢美式风

126㎡ 三房 美式 星耀五洲
造价:
12.8万

这是一套美式风格的装修案例,在蓝白色调的优雅气质中融入轻奢质感,加以清新惬意的氛围营造,整体舒适安宁而不失格调。希望这套装修案例能给准备装修的大家带来一些灵感。

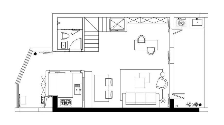
  • 全屋户型图

    这是一套美式风格的装修案例,在蓝白色调的优雅气质中融入轻奢质感,加以清新惬意的氛围营造,整体舒适安宁而不失格调。希望这套装修案例能给准备装修的大家带来一些灵感。

  • 客厅

    门厅空间为异形空间,面积充足,所以在右侧依墙形状设立收纳柜,

  • 卧室

    主卧选用淡灰色墙面,色调清浅自然,木质地板的温润与清新提

  • 卫生间

    卫生间以灰白色为主调,简约清透不失***感。大面积的镜柜提供更多收纳的同时,也扩展了空间视觉感。

< >

中古风

包豪斯

原木风

法式中古

奶油

沪ICP备13002314号-1 沪B2-20170342 组织机构代码证:66439109—1

中国互联网协会信用评价中心网信认证 网信编码:1664391091 举报电话:400-660-7700

齐家网 版权所有Copyright © 2005- www.jia.com All rights reserved

回到顶部

扫一扫,关注我们

齐家官方微信

温馨提示

取消 同意并继续